Messebild

Amorelie Messestand
Venus – Berlin – 2014

Badezimmer Bild

Küche
Privater Auftraggeber – Berlin – 2014

Badezimmer Bild

Küche
Privater Auftraggeber – Kathlow – 2014

Badezimmer Bild

Badezimmer
Privater Auftraggeber – Berlin – 2014

Constantia Flexibles - Messestand Bild

Constantia Flexibles - Messestand
Interpack – Düsseldorf – 2014

BAG Messestand Bild

BAG Messestand
Innotrans – Berlin – 2014

Badezimmer Bild

Küche
Privater Auftraggeber – Berlin – 2013

Paravent Bild

Paravent 
Ristorante Peppone – Berlin – 2013

PRG Messestand Details

PRG Messestand
Best of Events – Dortmund – 2013

Schumann at Pier 2 Bild

Schumann at Pier 2
Deutsche Welle – Bremen – 2011

ECHO Pop 2011 Bild

ECHO Pop 2011
ARD – Berlin – 2011

1,2 oder 3 Bild

1,2 oder 3
ZDF – München – 2011

Bild

Redken European Symposion
Berlin – 2011

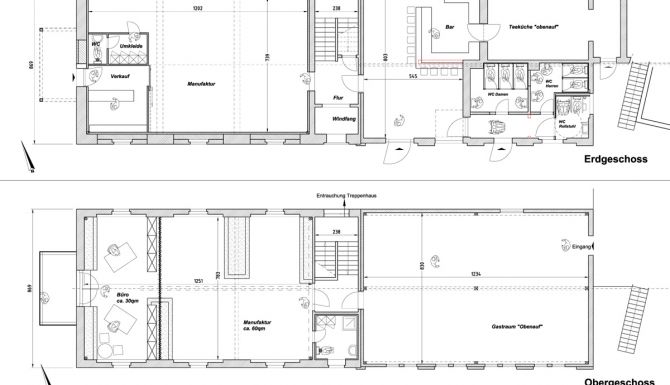
Gebäudekonzept Bild

Gebäudekonzept
Wiener Strudelmanufaktur – Berlin – 2010

Rüdiger Hoffmann Bild

Rüdiger Hoffmann
RTL – Berlin – 2010

Peter Hahne Details

Peter Hahne
ZDF – Berlin – 2010

The One Bild

The One
Wettbewerb – Berlin – 2010

20 Jahre Logo Show Bild

20 Jahre Logo Show
ZDF – 2009

Backofen Bild

Backofen
Privater Auftraggeber – Kathlow – 2009

Biogen-Idec Messestand Bild

Biogen-Idec Messestand
DGN – Köln – 2009

Kirche Bild

Kirche
Amt Neuhausen / Spree – 2008

AS&S Messestand  Bild

AS&S Messestand
Radioday – Köln – 2008

Sebastian VIP Bild

Sebastian VIP
Wettbewerb – Berlin – 2008

Samsung Gallery  Details

Samsung Gallery
CeBit – Hannover – 2007

Dachgeschoss  Bild

Dachgeschoss 
Privater Auftraggeber – Strausberg – 2006